人気の「中軽井沢」エリアに建つ
解放感のあるウッドデッキ付き平屋建て別荘
豊かな緑に彩られたアプローチを抜けると、柔らかな光が非日常へと誘います。
その先には、この地に新たな誇りを描く、絶景に抱かれし迎賓の空間。
都市の喧噪から離れ訪れるオーナーの心に、深いやすらぎをもたらしてくれます。
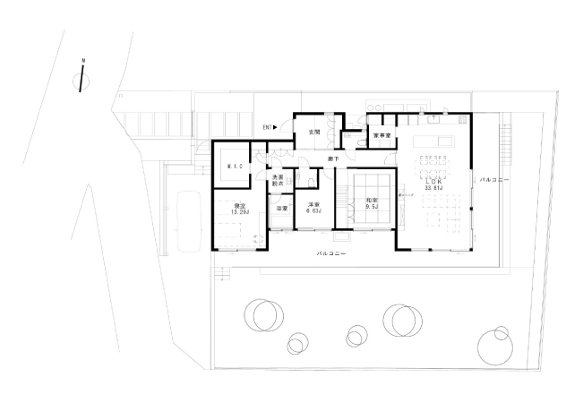
約40畳の広々としたLDKが魅力です。
M邸(中軽井沢エリア)
| 竣工 | 2017年1月 |
|---|---|
| 概要 | SE工法(重量木骨) 平屋建 |
| 敷地面積 | 912.88m2(276.14坪) |
| 延床面積 | 161.56m2(56.76坪) |
| 間取り | 4LDK + N + WIC |






















構造躯体には木造金物工法・SE構法を採用
阪神淡路大震災の木造住宅の被害をきっかけに生まれたSE構法の最大のメリットは、ラーメン構造を採り入れた木造として他社に先駆けて国の公的機関による構造評定を取得し、設計自由度が高く、さらに強靭な骨組構造にあります。
専門用語でredundancy【冗長性】といって、余力を備えたSE構法は、中越地震や東日本大震災、熊本地震においても、その性能を如何なく発揮しています。
地震だけではなく、台風や大雪も想定して構造計算
建築基準法上では、2階建てや平屋の建物では構造計算は求められません。
しかし建物の形は一棟一棟異なるため、安全・安心な構造躯体を設計する上で構造計算は必要不可欠です。地震や台風、豪雪にも耐えうる理想的な構造を設計するため、基礎から部材強度に至るまで全ての材料の強度を明確化して構造計算を行い、建物の安全性を証明しています。
構造計算により建物の地震に対する耐震性能を明確化して、最高等級である「耐震等級3」を実現しました。
外壁の断熱仕様
グラスウール100mm+外側付加断熱スタイロフォーム40mm
建物の全ての壁に付加断熱材を使用し、柱部分からの熱流入及び熱損失を抑えます。
屋根の断熱仕様
グラスウール240mm
屋根には充填断熱材240mmを採用しています。
壁の考え方と同様に梁からの熱損失と熱流入を抑える為、梁の下も断熱材で覆っています。
基礎の断熱仕様
立上部スタイロフォーム100mm、底盤部スタイロフォーム50mm
基礎断熱材には立上部にスタイロフォーム100mm、底盤部分に50mmを採用。
底盤面には全面断熱材を敷き詰め、地面への熱の流出を最小限に抑えます。
窓の断熱仕様
全ての窓に高性能サッシを採用
窓一枚一枚から逃げる熱の量を計算し、快適な温熱環境を実現するための高性能サッシを選定。
リビングの大開口部にはトリプルサッシを採用し、美しい眺望を実現しながら快適性も損なわない計画です。
換気仕様
全熱交換型24時間換気システム
換気をする際に外から入ってくる空気を室内の温湿度に近づけて取り入れる事ができる、全熱交換型の換気システムを採用しています。
冬期の換気でも冷たい風を感じずにお過ごし頂けます。
基礎工事
基礎工事時の写真。躯体同様に基礎も構造計算を行っていますので、構造計算通りに鉄筋を配筋しています。また、鉄筋や防湿シートに雪氷が付着していると、コンクリート打設後に融解し、その部分が空隙となって構造計算通りの強さが担保できないため、コンクリート打設前には雪氷が付着していないかを厳密に確認します。
気密・防水処理
建物を傷める最大の原因は水です。特に木造建築物においては定常的な雨漏りによって構造材が腐る事を何より避けなければなりません。
そこで私達が意識するのが、「止水ライン」と呼ばれるもの。これは雨水が建物に当たってからの動きを分析し、その流れを止める部分とその方法を示したものです。
この止水ラインを詳細に図面化し、明確にしながら、そのディテールを確実に実現させる施工を行うことによって木造建築物の最大の敵である雨から建物を守ります。
防湿処理
構造躯体の内部にて発生する結露を「壁体内結露」と呼びます。これは通常見えないところで起きる結露であるため、その発見が容易ではなく、特に施工上の配慮が求められるポイントです。現場での施工時には、結露のリスクがある部分に着目し、それに対応する施工上の工夫を行っています。
ヒートブリッジ処理
ヒートブリッジとは熱橋とも呼び、断熱材の切れ目など内外の熱が伝わりやすい場所を指します。屋根と壁の切り替わりや金物工法の金物部分などがそれにあたり、結露の原因にもなりやすい箇所です。施工時にヒートブリッジになりやすい部分には都度断熱材を充填するなど品質を守る工夫を行っています。

森の中に佇む温もりのある別荘建築
緑につつまれた自然を楽しみ、家族や仲間と共に過ごす・・・
COMING SOON